CasaSC


About
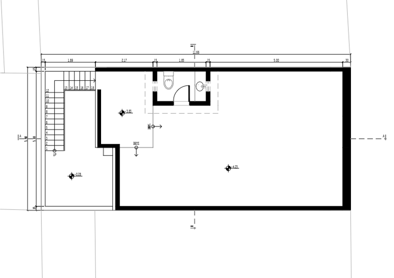
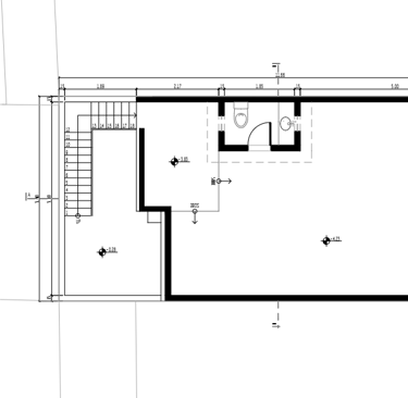
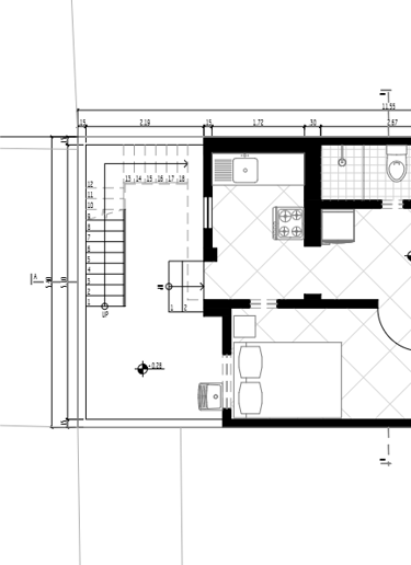
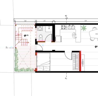
The Casa SC project explores the lightness of the metal structure in dialogue with the historic architecture of the Santo Cristo neighborhood in Rio de Janeiro. In a village of semi-detached houses with listed facades, the 50m² residence was designed for a family of three.
Taking advantage of the existing slab, a subtle extension was made: a slender, white structure, inspired by Adamo Faiden, set back to form a balcony.
This intervention preserves the identity of the surrounding area, avoiding excessive density and respecting the history of the place.


























